


Get additional information including price lists and floor plans.
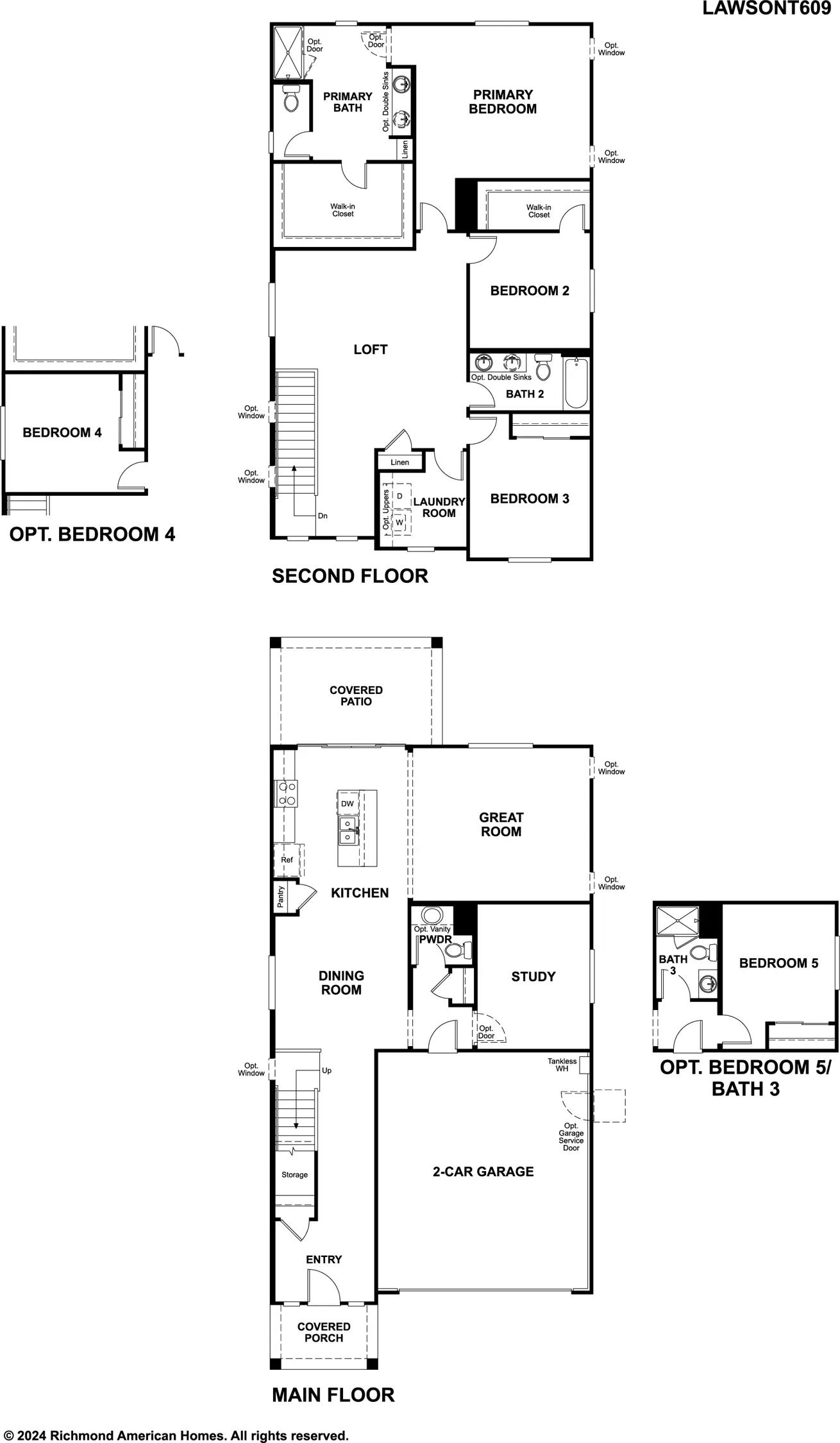
The main floor of the eye-catching Lawson plan features a spacious great room and an open dining room that flows into a generous kitchen with a convenient pantry and center island. This home will be built with either a private study and powder room or an extra bedroom with full bath. Upstairs, discover a convenient laundry and three inviting bedrooms, including an impressive primary suite with an attached bath and immense walk-in closet. The second floor with be built with either a loft or an additional bedroom.
Stay informed with Livabl updates on new community details and available inventory.