


































Get additional information including price lists and floor plans.
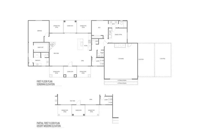
The elegant Agave home features 2 to 3 bedrooms (with den), 2.5 bathrooms, and a 2 to 4-car garage with optional RV garage. With 1,863 square feet of thoughtfully designed living space, this home offers a comfortable blend of luxury and practicality. Set on spacious homesites with breathtaking Catalina Mountain views, the Agave is perfect for those seeking refined desert living.
Stay informed with Livabl updates on new community details and available inventory.