
































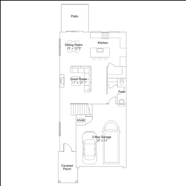
The first level of this two-story paired home is host to a generous open floorplan shared between the Great Room, kitchen and dining room. Sliding glass doors lead to the patio for effortless indoor-outdoor living and entertaining. All four bedrooms are located upstairs, including the luxe owners suite which features a restful bedroom, en-suite bathroom and walk-in closet.
Stay informed with Livabl updates on new community details and available inventory.