










































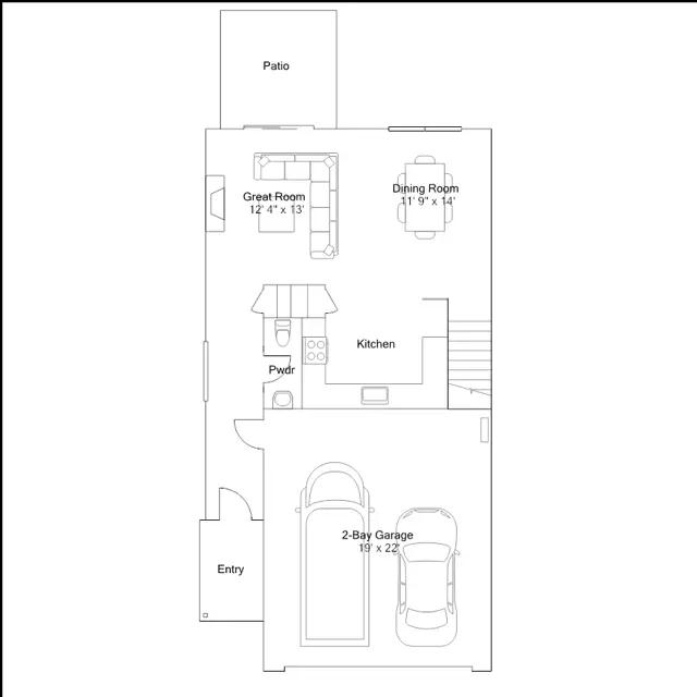
The first level of this two-story paired home features a generous open floorplan shared between the kitchen, dining room and Great Room. Sliding glass doors lead to a patio. All three bedrooms occupy the second floor, including the luxe owners suite which is comprised of a restful bedroom, en-suite bathroom and walk-in closet.
Stay informed with Livabl updates on new community details and available inventory.