hero-image-0
hero-image-1

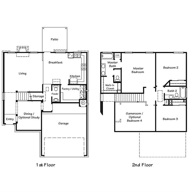
1011 Macy Drive

Settlers Point
Sold
Sold
3
2
1
1,900
1011 Macy Drive details
unit-banner-image
unit-banner-image
unit-banner-image
1011 Macy Drive is now sold.
Check out available nearby homes below.