







































































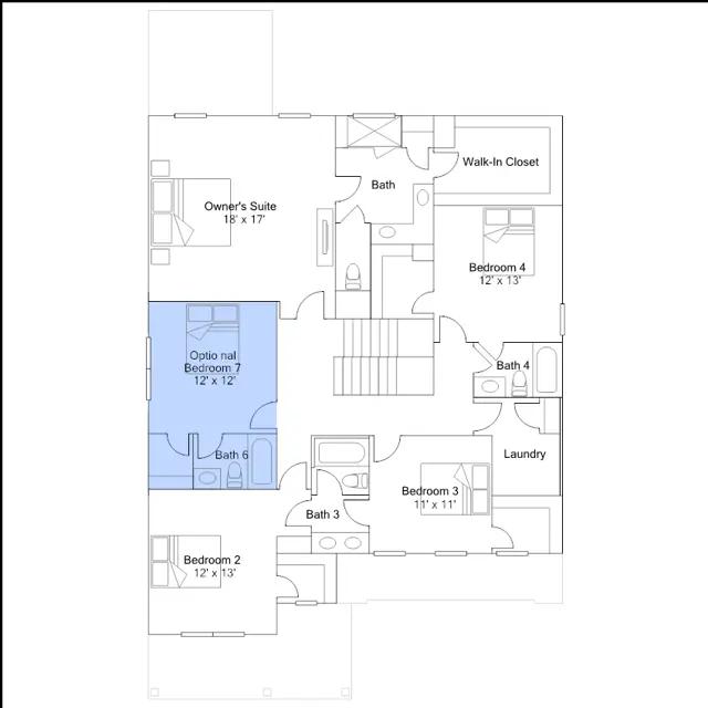
This new three-story home combines modern luxury with family living and many options to personalize. The main shared spaces enjoy a cohesive design on the first floor, which also provides a patio for outdoor living. A versatile loft is surrounded by four bedrooms, all with walk-in closets, including the owners suite on the second floor, while a flexible bonus room and bedroom make up the top level.