





















































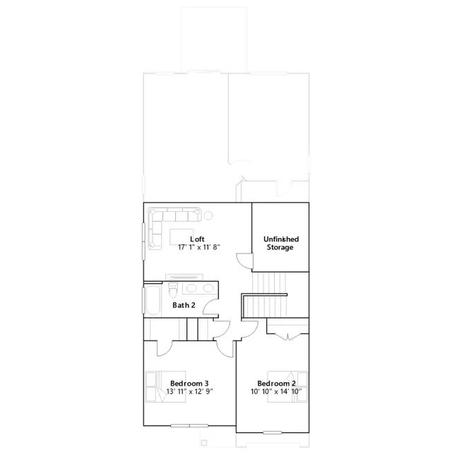
This spacious two-story home features a comfortable owners suite on the first floor, nestled into a private back corner with a private bathroom and walk-in closet. A versatile living room is located off the foyer, leading to an open-concept floorplan with convenient access to an outdoor patio for seamless entertaining and multitasking. Two secondary bedrooms share the second floor with a flexible loft.
Stay informed with Livabl updates on new community details and available inventory.