







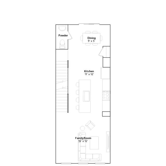
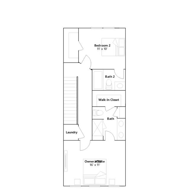
This new townhome offers three stories of elegant living and entertainment space. Beyond the foyer is a recreation room that provides numerous possibilities, along with a convenient garage. The open-concept main level features a central kitchen with a dining area and a welcoming family room. The topmost level includes two-bedroom suites located at opposite ends of the hallway, each with an attached bathroom and walk-in closet.
Stay informed with Livabl updates on new community details and available inventory.