











Images coming soon
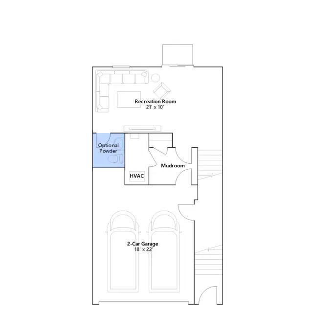
Thisthree-story home features a first-floor a recreation room, ideal for entertaining guests, with access to an outdoor space.Upstairsisan open layout shared among the kitchen, dining area and Great Room, creating the perfect space for hosting special gatherings.On the top floor are two secondary bedrooms, along with the luxe owners suite with an en-suite bathroom and walk-in closet.
Stay informed with Livabl updates on new community details and available inventory.