















































































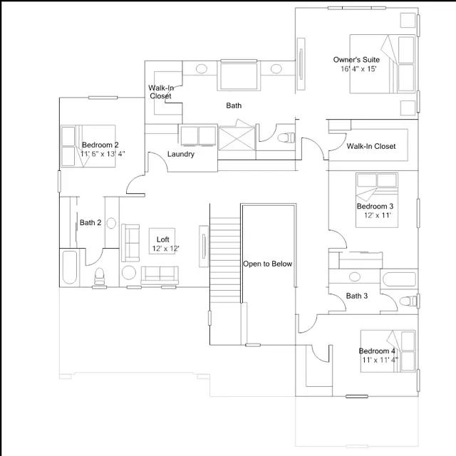
The first level of this two-story home is host to a generous open floorplan shared between the family room, kitchen, nook and dining room. A secondary bedroom suite with a walk-in closet is situated just off the foyer, great for overnight guests. Four more bedrooms, including the luxe owners suite, occupy the homes second floor.
Stay informed with Livabl updates on new community details and available inventory.