













































































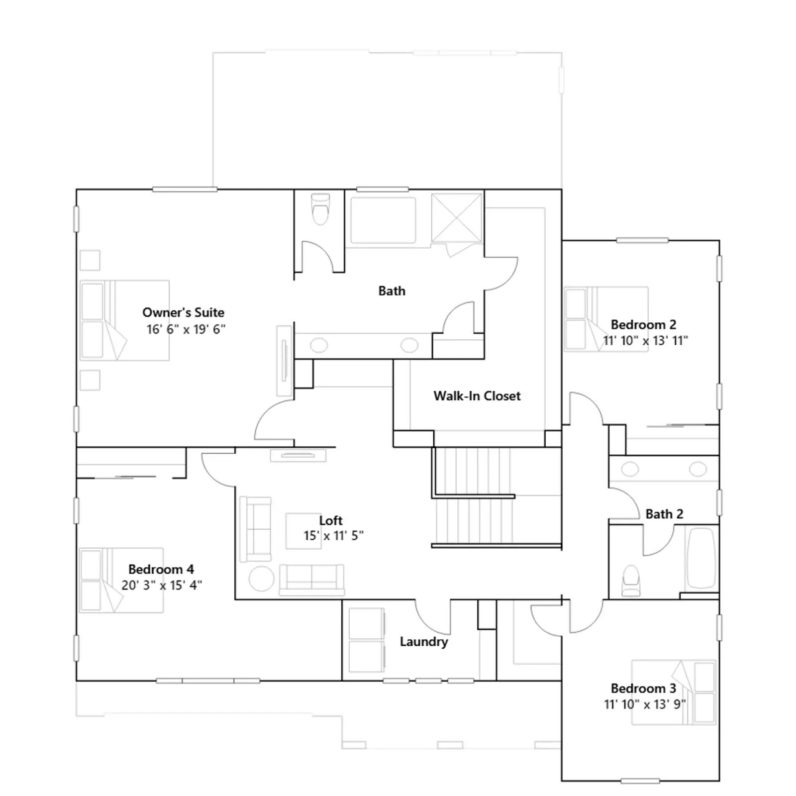
This two-story home showcases Lennars signature Next Gen suite, ideal for multigenerational living with a separate living space, kitchenette, bedroom, bathroom and laundry. The main home features a generous open floorplan shared between the family room, kitchen and dining room. Four bedrooms are found upstairs, including the luxe and expansive owners suite.
Stay informed with Livabl updates on new community details and available inventory.