

















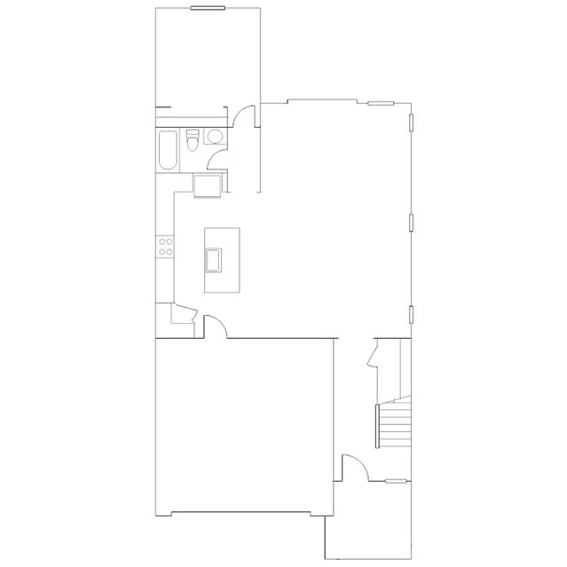
This two-story residence has a flexible layout that makes smart use of the space available. The front door leads to a welcoming foyer and down the hall is an open concept living area with access to an impressive backyard. A bedroom is nestled in a private corner beside the bathroom, making it perfect for overnight guests. Upstairs is a loft and three additional bedrooms, including the owners suite.