hero-image-0

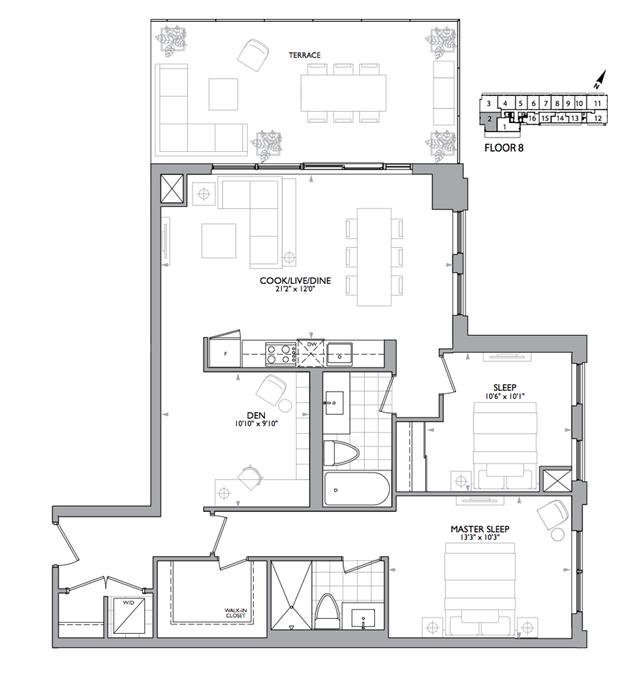
2P + D Plan

Zigg Condos
Sold
Sold
2
2
1
From 1,039
unit-banner-imageunit-banner-imageunit-banner-image
2P + D Plan details
2P + D Plan is now sold.
Check out available nearby plans below.