hero-image-0

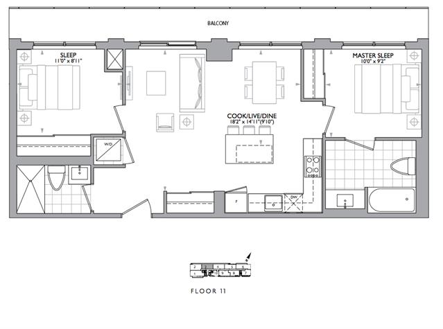
2M Plan

Zigg Condos
Sold
Sold
2
2
From 778
unit-banner-imageunit-banner-imageunit-banner-image
2M Plan details
2M Plan is now sold.
Check out available nearby plans below.