FEATURED
2B
Queen Church
Garden District, Toronto
E9
Motto
Bloorcourt Village, Toronto
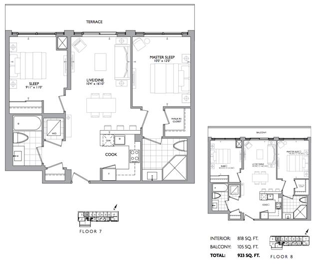
2K
2D
D1
2C
2G
E6A