hero-image-0

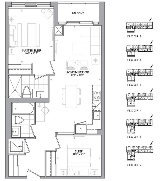
2A Plan

Zigg Condos
Sold
Sold
2
2
From 797
unit-banner-imageunit-banner-imageunit-banner-image
2A Plan details
2A Plan is now sold.
Check out available nearby plans below.