hero-image-0

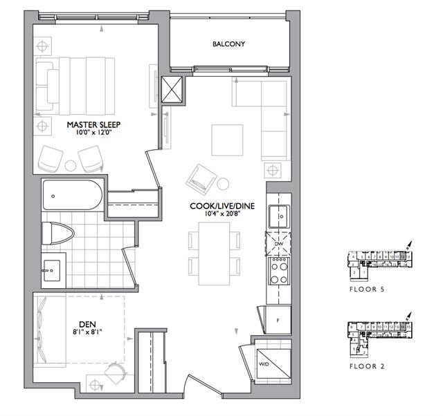
1F + D Plan

Zigg Condos
Sold
Sold
1
1
1
From 608
unit-banner-imageunit-banner-imageunit-banner-image
1F + D Plan details
1F + D Plan is now sold.
Check out available nearby plans below.