hero-image-0

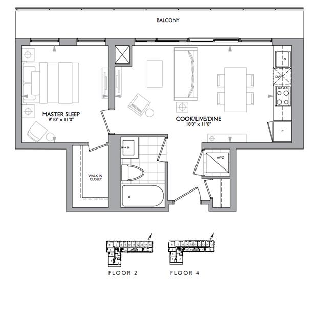
1C Plan

Zigg Condos
Sold
Sold
1
1
From 521
unit-banner-imageunit-banner-imageunit-banner-image
1C Plan details
1C Plan is now sold.
Check out available nearby plans below.