hero-image-0

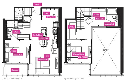
Wearstler Plan

X2 Condos
Sold
Sold
2
1
From 1,121
unit-banner-imageunit-banner-imageunit-banner-image
Wearstler Plan details
Wearstler Plan is now sold.
Check out available nearby plans below.