hero-image-0

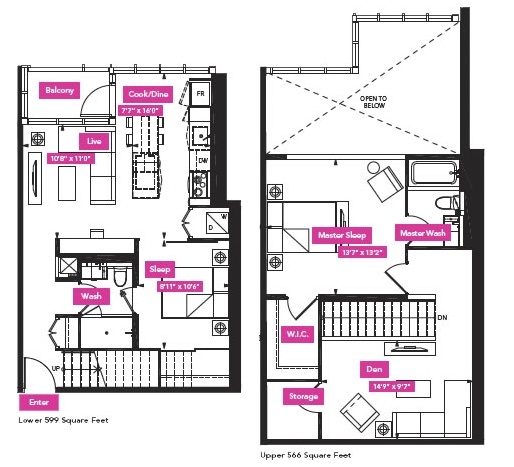
Livingston Plan

X2 Condos
Sold
Sold
2
1
From 1,165
unit-banner-imageunit-banner-imageunit-banner-image
Livingston Plan details
Livingston Plan is now sold.
Check out available nearby plans below.