hero-image-0

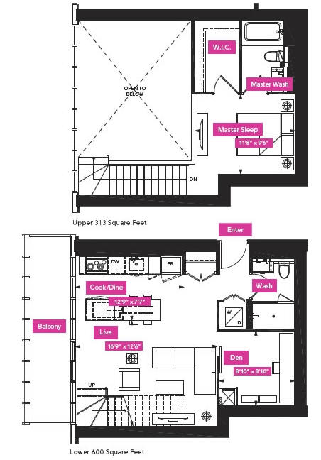
Cunningham Plan

X2 Condos
Sold
Sold
1
1
From 913
unit-banner-imageunit-banner-imageunit-banner-image
Cunningham Plan details
Cunningham Plan is now sold.
Check out available nearby plans below.