FEATURED
B15
Motto
Bloorcourt Village, Toronto
1F+D
Queen Church
Garden District, Toronto
B18
B17
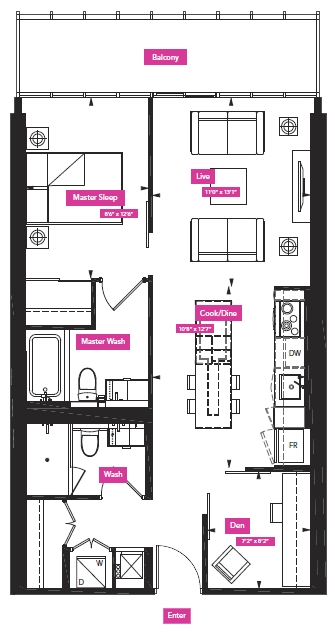
1G+D
B21
1E+D
B20A