hero-image-0

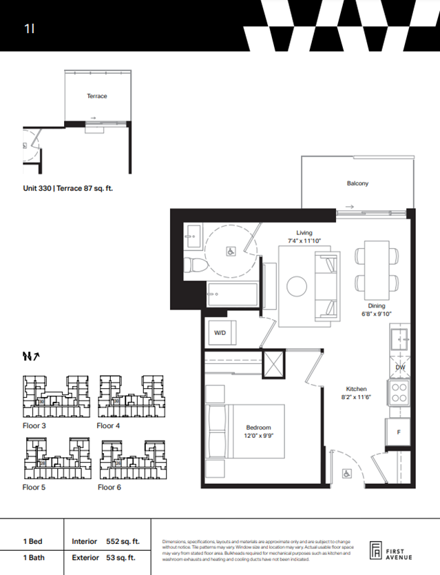
1I Plan

By

First Avenue

   |   

Wilson West

Wilson West
For sale
For sale
From $513,900
1
1
From 552
$931
unit-banner-imageunit-banner-imageunit-banner-image
1I Plan details

Contact sales center

Get additional information including price lists and floor plans.

Interested? Receive updates

Stay informed with Livabl updates on new community details and available inventory.