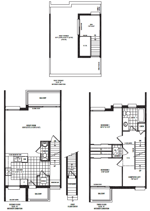
1106
Westshore
Long Branch, Toronto
1089
1091
963
1139A
1138
955
902
Cityzen and Fernbrook to release new Widdicombe and Eglinton freehold towns this weekend
The celebrations will begin at 11am at the sales office at Eglinton Avenue West and Widdicombe Hill Boulevard.