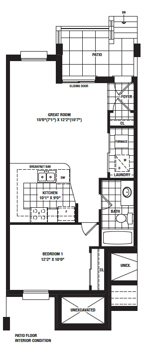
520
Westshore
Long Branch, Toronto
575
530
643
529
551
597
599
Cityzen and Fernbrook to release new Widdicombe and Eglinton freehold towns this weekend
The celebrations will begin at 11am at the sales office at Eglinton Avenue West and Widdicombe Hill Boulevard.