1089
Westshore
Long Branch, Toronto
963
1106
902
1139A
1138
1091
955
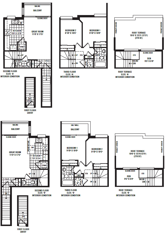
Cityzen and Fernbrook to release new Widdicombe and Eglinton freehold towns this weekend
The celebrations will begin at 11am at the sales office at Eglinton Avenue West and Widdicombe Hill Boulevard.