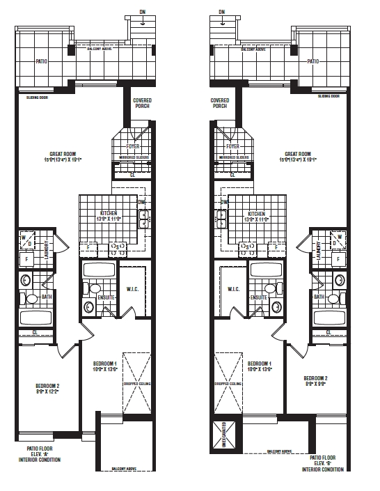
1106
Westshore
Long Branch, Toronto
1091
902
1089
963
955
1139A
1138
Cityzen and Fernbrook to release new Widdicombe and Eglinton freehold towns this weekend
The celebrations will begin at 11am at the sales office at Eglinton Avenue West and Widdicombe Hill Boulevard.