hero-image-0

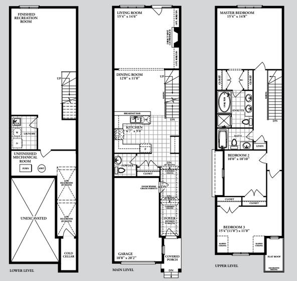
The Amberly Plan

Westwood at Pape Village
Sold
Sold
3
2
1
From 2,351
unit-banner-imageunit-banner-imageunit-banner-image
The Amberly Plan details
The Amberly Plan is now sold.
Check out available communities below.