hero-image-0

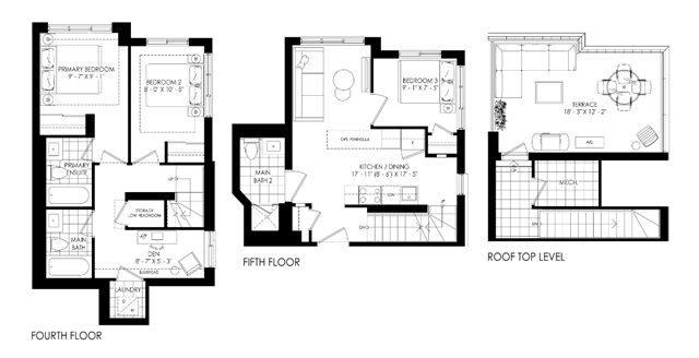
1204 Plan

By

Minto Group

   |   

Westshore

Westshore
For sale
For sale
From $1,121,900
3
3
3
1
From 1,204
unit-banner-imageunit-banner-imageunit-banner-image
1204 Plan details

Contact sales center

Get additional information including price lists and floor plans.

Interested? Receive updates

Stay informed with Livabl updates on new community details and available inventory.