FEATURED
B18
Motto
Bloorcourt Village, Toronto
1F+D
Queen Church
Garden District, Toronto
B20A
1G+D
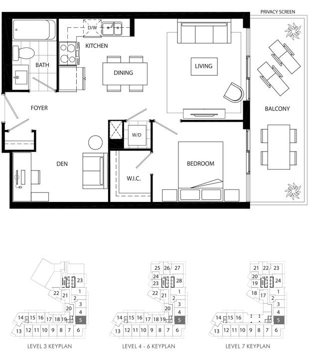
1E+D
B17
B21
B15
Updated: Who has built the most storeys since 2011?
If you were to stack up all of the storeys developers have built across the country over the last ten years, which builder would reach the highest heights?