FEATURED
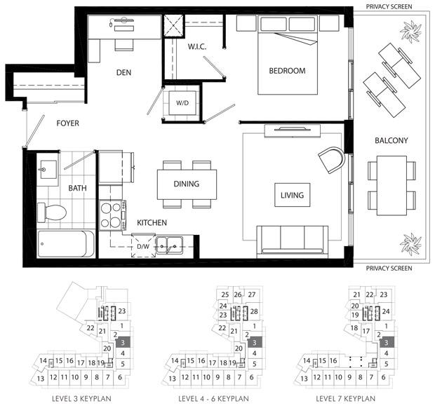
B20A
Motto
Bloorcourt Village, Toronto
B18
1E+D
Queen Church
Garden District, Toronto
B17
1F+D
B21
1G+D
B15
Updated: Who has built the most storeys since 2011?
If you were to stack up all of the storeys developers have built across the country over the last ten years, which builder would reach the highest heights?