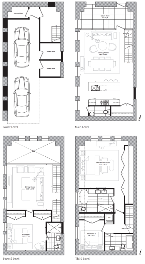
TH06
River & Fifth
Regent Park, Toronto
1177 Avenue Road
The Briar on Avenue
Lytton Park, Toronto
410
Residences on Keewatin Park
Sherwood Park, Toronto
1171 Avenue Road
372 Briar Hill Avenue
104
The Winslow
1179 Avenue Road
1173 Avenue Road