1177 Avenue Road
The Briar on Avenue
Lytton Park, Toronto
1179 Avenue Road
410
Residences on Keewatin Park
Sherwood Park, Toronto
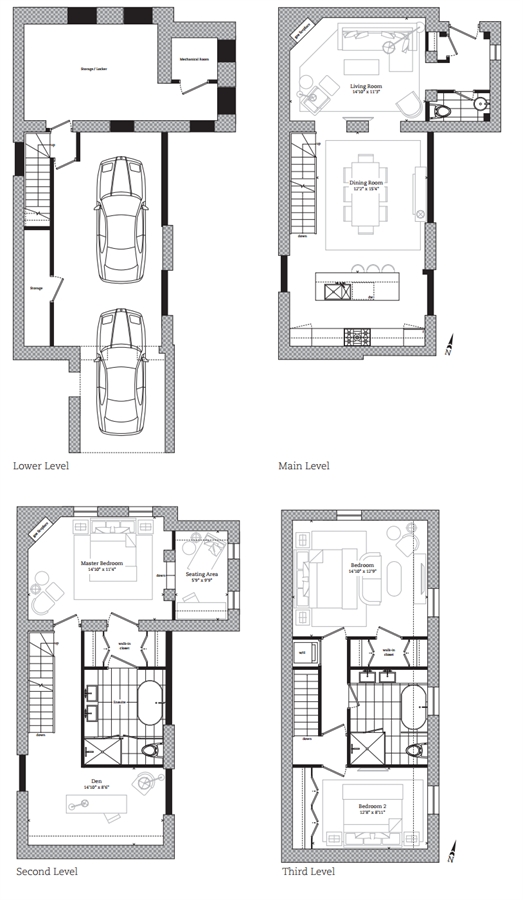
TH06
River & Fifth
Regent Park, Toronto
1173 Avenue Road
372 Briar Hill Avenue
104
The Winslow
1171 Avenue Road