



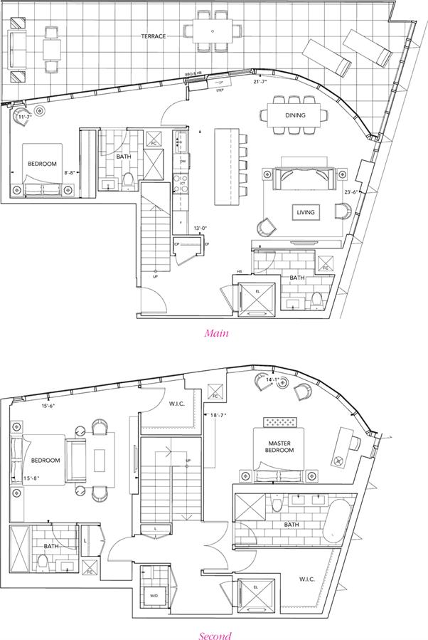
This $3.2 million condo penthouse has its own walk-in wine storage closet
Whether you’re a “chardonnay all day” type of person or you prefer “la vie en rosé,” it’s always a bonus to have some dedicated space at home to store your favourite bottles of wine.

Via Bloor towers near final height at Bloor and Parliament
Today, workers are pouring concrete for the top few floors on the 37- and 45-storey towers.

10 new construction Toronto condos selling now near major TTC stations
While the Toronto Transit Commission’s subway lines aren’t the same spaghetti-like maze of London’s underground, they play a vital role in moving us to and from the downtown core.