hero-image-0

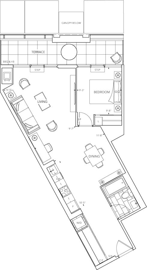
1GT Plan

By

Tridel

   |   

Via Bloor

Via Bloor
Sold
Sold
1
1
From 751
unit-banner-imageunit-banner-imageunit-banner-image
1GT Plan details
1GT Plan is now sold.
Check out available nearby plans below.