hero-image-0

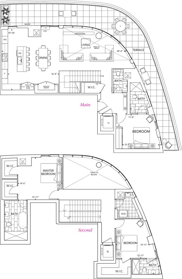
PH22 Plan

By

Tridel

and

Hullmark

   |   

Via Bloor 2

Via Bloor 2
Sold
Sold
3
3
1
From 2,455
unit-banner-imageunit-banner-imageunit-banner-image
PH22 Plan details
PH22 Plan is now sold.
Check out available nearby plans below.