hero-image-0

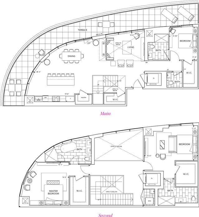
PH18 Plan

By

Tridel

and

Hullmark

   |   

Via Bloor 2

Via Bloor 2
Sold
Sold
3
3
From 2,751
unit-banner-imageunit-banner-imageunit-banner-image
PH18 Plan details
PH18 Plan is now sold.
Check out available nearby plans below.