hero-image-0

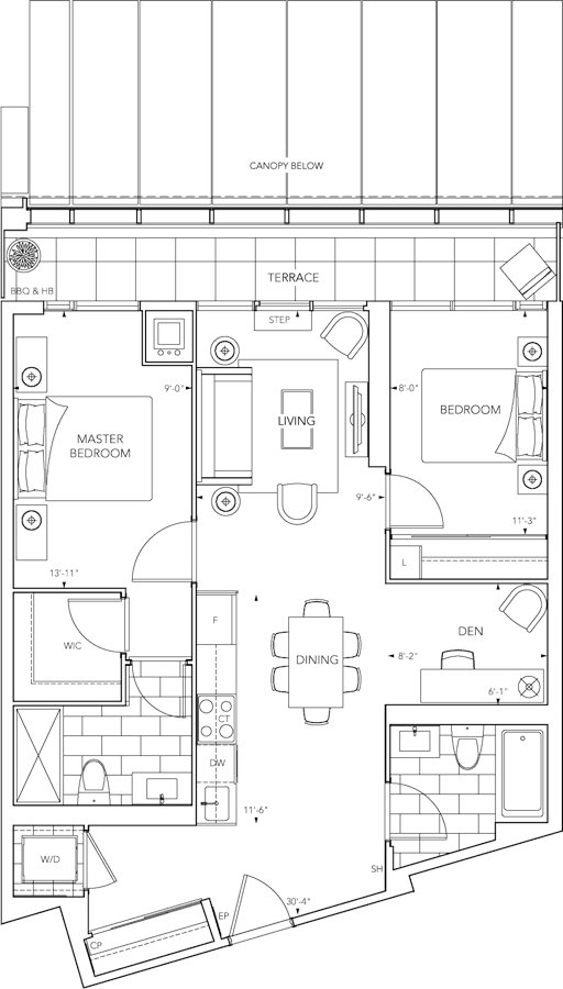
2H+DT Plan

By

Tridel

and

Hullmark

   |   

Via Bloor 2

Via Bloor 2
Sold
Sold
2
2
From 857
unit-banner-imageunit-banner-imageunit-banner-image
2H+DT Plan details
2H+DT Plan is now sold.
Check out available nearby plans below.