hero-image-0

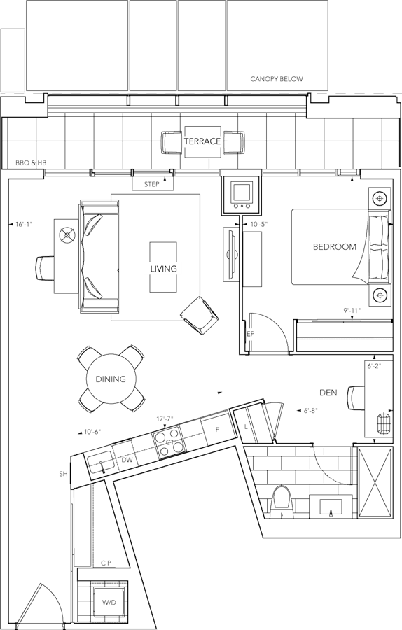
1M+DT Plan

By

Tridel

and

Hullmark

   |   

Via Bloor 2

Via Bloor 2
Sold
Sold
1
1
1
From 739
unit-banner-imageunit-banner-imageunit-banner-image
1M+DT Plan details
1M+DT Plan is now sold.
Check out available nearby plans below.