hero-image-0

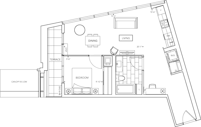
1HT Plan

By

Tridel

and

Hullmark

   |   

Via Bloor 2

Via Bloor 2
Sold
Sold
1
1
From 693
unit-banner-imageunit-banner-imageunit-banner-image
1HT Plan details
1HT Plan is now sold.
Check out available nearby plans below.