hero-image-0

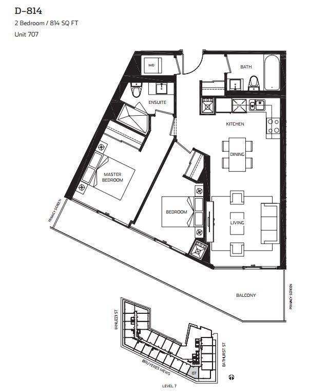
814 Plan

The Yards at Fort York
Sold
Sold
2
2
From 814
unit-banner-imageunit-banner-imageunit-banner-image
814 Plan details
814 Plan is now sold.
Check out available nearby plans below.