hero-image-0

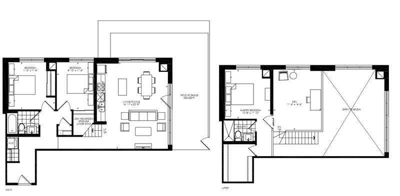
L C1 Plan

The Station
Sold
Sold
3
1
From 1,807
unit-banner-imageunit-banner-imageunit-banner-image
L C1 Plan details
L C1 Plan is now sold.
Check out available nearby plans below.