hero-image-0

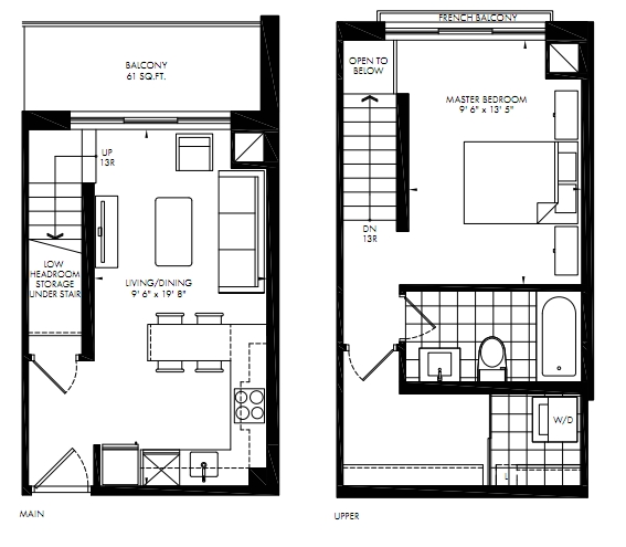
L B6c Plan

The Station
Sold
Sold
1
From 664
unit-banner-imageunit-banner-imageunit-banner-image
L B6c Plan details
L B6c Plan is now sold.
Check out available nearby plans below.