hero-image-0

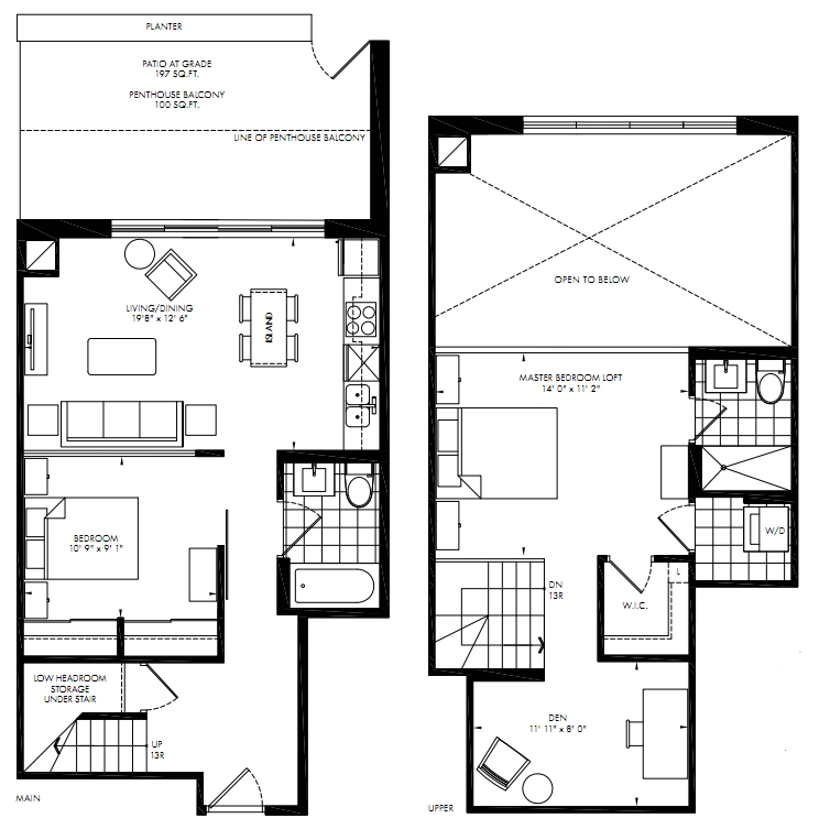
L B4b Plan

The Station
Sold
Sold
2
1
From 1,237
unit-banner-imageunit-banner-imageunit-banner-image
L B4b Plan details
L B4b Plan is now sold.
Check out available nearby plans below.