hero-image-0

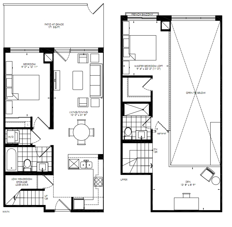
L B1 Plan

The Station
Sold
Sold
2
1
From 1,285
unit-banner-imageunit-banner-imageunit-banner-image
L B1 Plan details
L B1 Plan is now sold.
Check out available nearby plans below.