hero-image-0

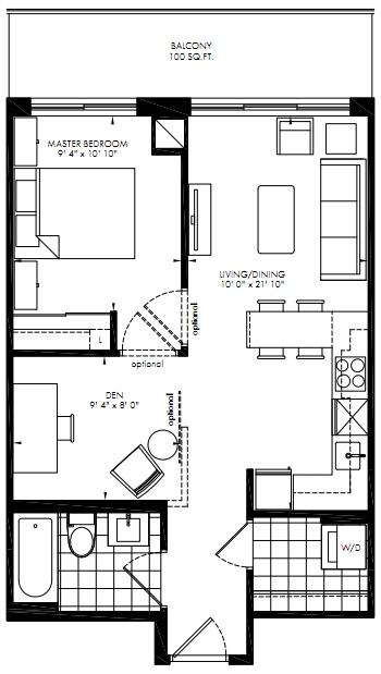
B5b Plan

The Station
Sold
Sold
1
1
From 700
unit-banner-imageunit-banner-imageunit-banner-image
B5b Plan details
B5b Plan is now sold.
Check out available nearby plans below.