hero-image-0

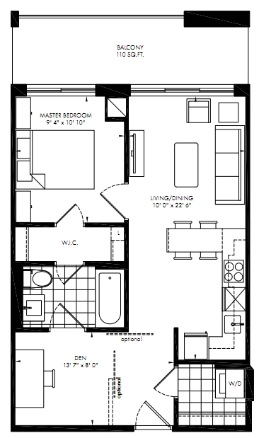
B3a Plan

The Station
Sold
Sold
1
1
From 712
unit-banner-imageunit-banner-imageunit-banner-image
B3a Plan details
B3a Plan is now sold.
Check out available nearby plans below.