hero-image-0

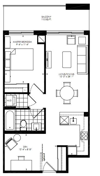
B1a Plan

The Station
Sold
Sold
1
1
From 767
unit-banner-imageunit-banner-imageunit-banner-image
B1a Plan details
B1a Plan is now sold.
Check out available nearby plans below.