hero-image-0

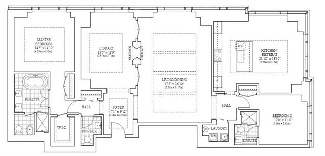
Unit 3405

The St Regis Residences
Sold
Sold
2
2
1
2,228
Unit 3405 details
unit-banner-image
unit-banner-image
unit-banner-image
Unit 3405 is now sold.
Check out available nearby condos below.