




Construction moves towards the residential levels at The Residences of 488 University Avenue
Gone are the concrete grill cladding and Brutalist-style facade which have been replaced by an all new, jewel-like glass skin.

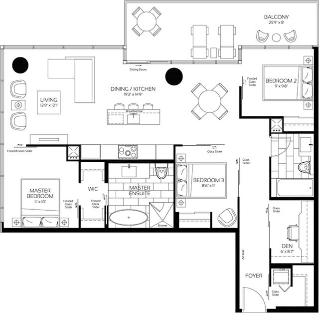
Amexon introduces The Residences of 488 University Avenue, a 55-storey tower in downtown Toronto
The modern condo building will feature 30,000 square feet in lifestyle amenities.